High Street, Nefyn, Pwllheli £193,000
The property is conveniently located for the amenities including convenience store, cafe/restaurant, primary school and beach and the championship golf course at Morfa Nefyn is only a few miles away.
Pwllheli the market town for the area is only about 7 miles and boasts excellent amenities including leisure centre, golf course and award winning marina.
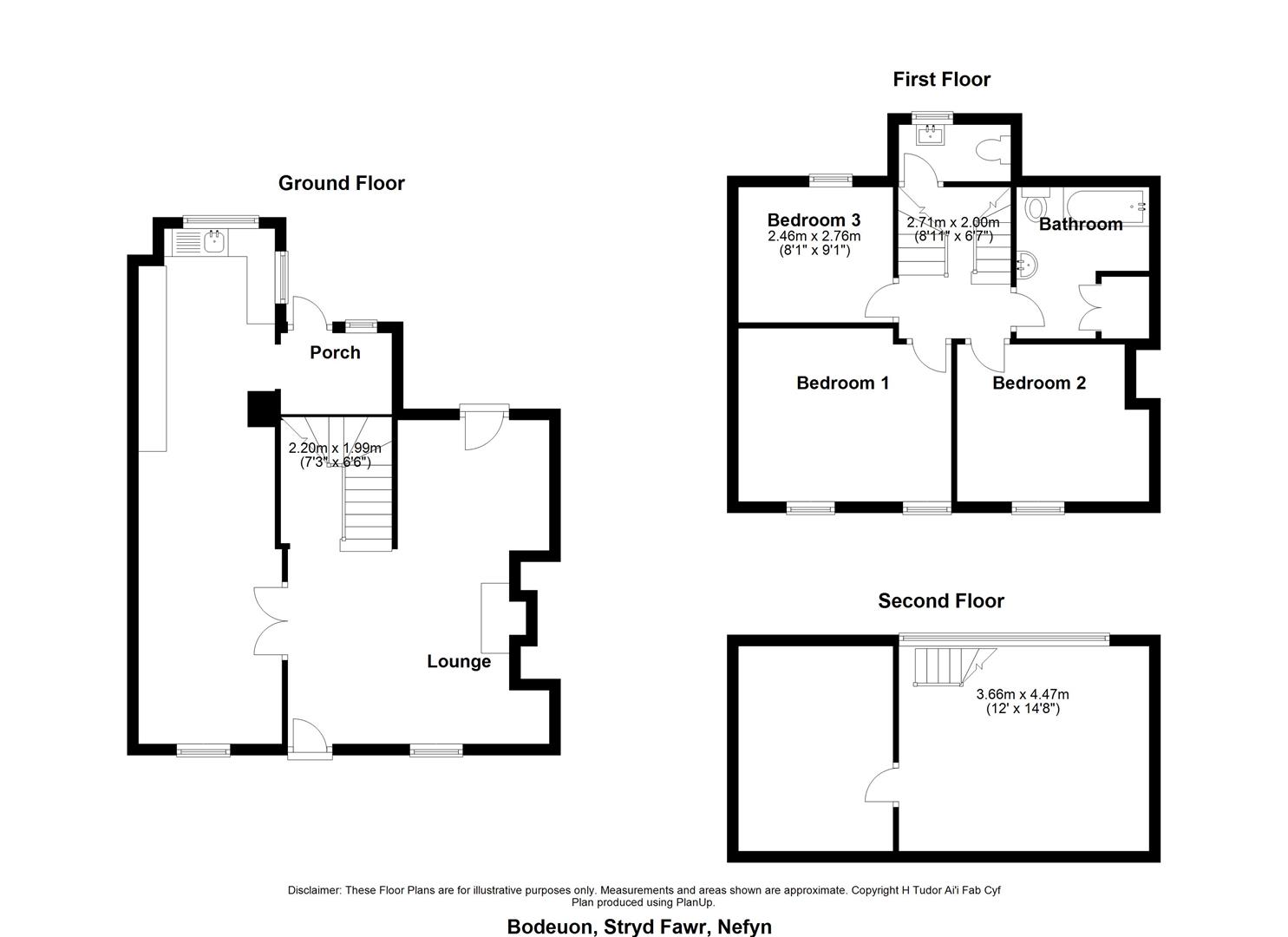
The comfortable accommodation briefly comprises of the following: - Lounge. Open Plan Kitchen/Dining. Rear Porch/Utility. Three Bedrooms. Bathroom. Loft Bedroom with Store Room with potential. Front Yard. Rear garden with steps up to lawned garden.
GROUND FLOOR
Lounge
'L' shaped room maximum measurements. UPVC outside door. Open beams. Inglenook fireplace with multi fuel stove with back boiler for hot water. Stairs to first floor. Patio door to rear garden. Double doors to:
4.67m x 5.77m (15'4 x 18'11)
Kitchen/Diner
Modern fitted kitchen with single drainer sink unit with mixer tap. Breakfast bar. Plumbing for dishwasher. Space for oven and refrigerator.
9.30m x 2.59m (30'6 x 8'6)
Rear Porch/Utility
Plumbing for washing machine. Outside door to rear. Storage cupboard.
FIRST FLOOR
Landing
Stairs to second floor/loft room.
Toilet
Low level w.c. Pedestal washbasin.
Rear Bedroom
Wall mounted electric heater.
2.74m x 2.46m (9'0 x 8'1)
Front Bedroom
Wall mounted electric heater.
3.78m x 3.07m (12'5 x 10'1)
Front Bedroom
Wall mounted electric heater.
4.37m x 2.87m (14'4 x 9'5)
Bathroom
Pedestal washbasin. Panelled bath with electric shower over. Low level w.c. Airing cupboard with pre-lagged cylinder. Radiator.
2.59m x 2.67m (8'6 x 8'9)
LOFT ROOM
Large dormer windows.
4.57m x 3.99m (15'0 x 13'1)
Attic Store
2.74m x 3.96m (9'0 x 13'0)
SERVICES
We understand that mains water, electricity and drainage are connected to the property. Prospective purchasers should make their own enquiries as to the suitability and adequacy of these services.
TENURE
We understand that the property is freehold with vacant possession available on completion.
Principal Features
1/01/2019
Nefyn LL53 6HD
- Bedrooms
- 4
- Bathrooms
- 1
- Reception Rooms
- 2
- Style
- House - Terraced
1/01/2019
Nefyn LL53 6HD
Please complete the form below to request a viewing for this property. We will review your request and respond to you as soon as possible. Please add any additional notes or comments that we will need to know about your request.
1/01/2019
Nefyn LL53 6HD
If you would like to send this property to a friend that you think may be interested, please complete the form below. To send this property to multiple friends, enter each email separated by a comma in the 'Friends Email' field.
1/01/2019
Nefyn LL53 6HD

Cymraeg

