NewTopLogo

Newid iaith

Rydych chi ar y tudalennau Cymraeg

Aberdaron, Pwllheli £495,000/Guide price

Ystafelloedd Gwely
9
Ystafelloedd Ymolchi
2
Ystafelloedd Byw
4
Tudor Estate Agents & Chartered Surveyors are pleased to present for sale this substantial detached residence, in an elevated position in this picturesque village of Aberdaron, overlooking the stunning bay, and enjoying breathtaking sea views. This is a very rare opportunity to acquire a property in this sought-after delightful position.
The property is located within walking distance of the amenities and stunning beach at Aberdaron, a popular quaint village on the western extremity of the glorious Llyn Peninsula.
Bryn Mor offers spacious accommodation with great potential, with a number of generously sized Reception Rooms, Nine Bedrooms, Family Bathroom & Shower room.
Drive with Ample Parking. Large Gardens surrounding the property - all enjoying the spectacular views.
Inspection Highly Recommended.

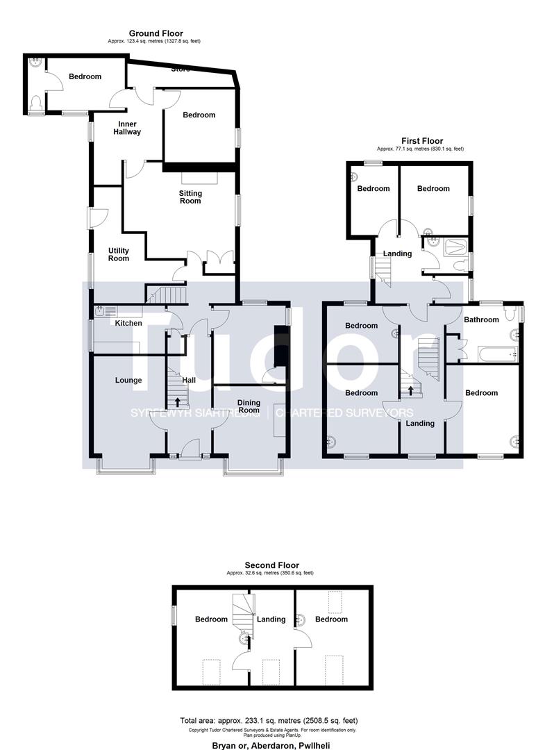
GROUND FLOOR

Porch

Hall

Stairs to first floor. Radiator.

Lounge

Maximum measurements to bay window with sea view. Radiator. Fireplace. *Collapsed ceiling in the bay.

3.02m x 5.26m (9'11 x 17'3)

Dining Room

Maximum measurements to bay window with sea view. Radiator. Fireplace.

3.07m x 4.04m (10'1 x 13'3)

Sitting Room

Radiator.

2.72m x 3.33m (8'11 x 10'11)

Kitchen

3.00m x 2.01m (9'10 x 6'7)

Rear Hall

Radiator. Stairs to first floor. Outside door.

Utility Room

Plus deep recess for washing machine. Outside door.

2.16m x 2.36m (7'1 x 7'9)

Sitting Room

Radiator. Fireplace.

4.70m x 3.66m (15'5 x 12'0)

Inner Hall

3.40m x 2.90m (11'2 x 9'6)

Bedroom Suite

With Toilet & Washbasin.

2.95m x 3.02m (9'8 x 9'11)

Bedroom

Store

FIRST FLOOR

Landing

Seating area with sea views. Radiator. Stairs to second floor.

Bathroom

Radiator. Low level w.c. Panelled bath. Washbasin. Airing cupboard with cylinder.

3.02m x 2.46m (9'11 x 8'1)

Rear Bedroom

Washbasin. Radiator.

3.05m x 2.46m (10'0 x 8'1)

Front Bedroom

Washbasin. Radiator. Sea views.

3.05m x 3.71m (10'0 x 12'2)

Front Bedroom

Washbasin. Radiator. Sea views.

3.05m x 3.76m (10'0 x 12'4)

Rear Landing

Bedroom

Washbasin. Radiator.

2.01m x 2.90m (6'7 x 9'6)

Bedroom

Washbasin. Radiator.

2.92m x 2.64m (9'7 x 8'8)

Shower Room

Washbasin. Shower cubicle. Low level w.c. Towel radiator.

1.78m x 1.75m (5'10 x 5'9)

SECOND FLOOR

Landing

Bedroom

Washbasin. Two Velux rooflights.

3.02m x 3.96m (9'11 x 13'0)

Bedroom

Washbasin. Velux. Gable window.

3.02m x 3.96m (9'11 x 13'0)

SERVICES

We understand that mains water, electricity, drainage and oil are connected to the property. Prospective purchasers should make their own enquiries as to the suitability and adequacy of these services.

TENURE

We understand that the property is freehold with vacant possession available on completion.

COUNCIL TAX

For the purposes of Article 4, we understand the property is registered as main residence.


Prif Nodweddion
Cyfeirnod:
1/01/2019
Bryn Mor
Aberdaron LL53 8BS
Sir: Gwynedd
Statws: Ar Werth
Ref #: 18100467
Ystafelloedd Gwely
9
Ystafelloedd Ymolchi
2
Ystafelloedd Byw
4
Style
House - Detached
Cyfeirnod:
1/01/2019
Bryn Mor
Aberdaron LL53 8BS
Sir: Gwynedd
Statws: Ar Werth
Ref #: 18100467

Llenwch y ffurflen isod i ofyn am weld yr eiddo yma. Byddwn yn adolygu'ch cais ac yn ymateb ichi cyn gynted â phosibl. Ychwanegwch unrhyw nodiadau neu sylwadau ychwanegol am eich cais.

 
Cyfeirnod:
1/01/2019
Bryn Mor
Aberdaron LL53 8BS
Sir: Gwynedd
Statws: Ar Werth
Ref #: 18100467

If you would like to send this property to a friend that you think may be interested, please complete the form below. To send this property to multiple friends, enter each email separated by a comma in the 'Friends Email' field.

 
Cyfeirnod:
1/01/2019
Bryn Mor
Aberdaron LL53 8BS
Sir: Gwynedd
Statws: Ar Werth
Ref #: 18100467
Er y credir bod y manylion hyn yn sylweddol gywir ni ellir gwarantu eu cywirdeb. Nid ydynt yn rhan o unrhyw gontract. Fe'u bwriedir fel canllaw yn unig a rhaid i brynwyr fodloni eu hunain trwy archwiliad personol. Gallwch lawr lwytho, storio a defnyddio'r deunydd at eich defnydd personol a'ch ymchwil eich hun. Ni chewch ailgyhoeddi, ail-drosglwyddo, ailddosbarthu neu sicrhau bod y deunydd ar gael i unrhyw barti a pheidiwch â chyhoeddi ar unrhyw wefan arall.

Symudwch gyda Hyder-
- yn y wybodaeth eich bod wedi'ch diogelu fel gwerthwr, prynwr, Landlord neu Denant.   
Rydym yn aelodau o gyrff eiddo proffesiynol:

Affiliations

MovingBoxesWide